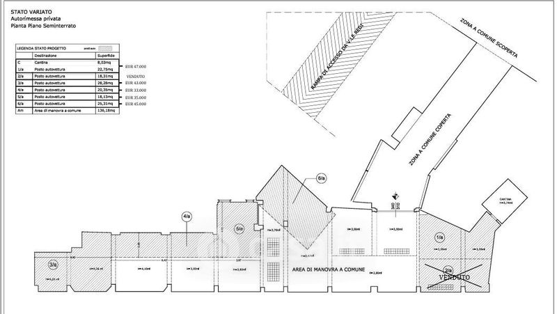
Box/posto auto in vendita Piazza di San Jacopino 16, Firenze
Salva
Casa.it
1/4
  • Street View
  • Map