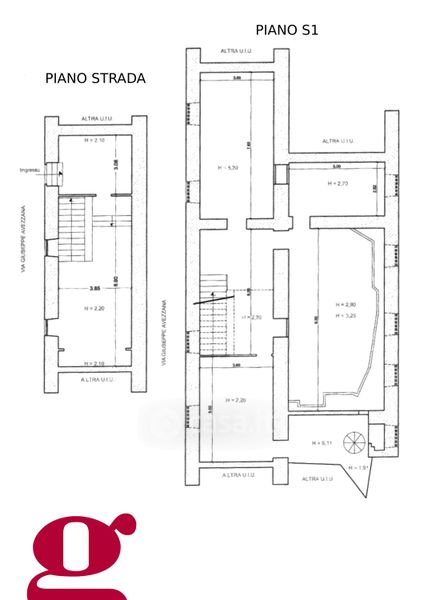
Cantina/Solaio in affitto Via Giuseppe Avezzana , Roma
Salva
Casa.it
1/10
  • Street View
  • Map