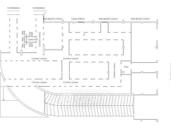
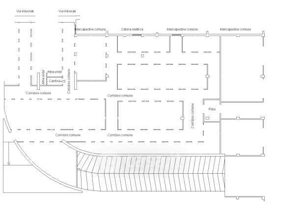
Cantina/Solaio in vendita Via Carlo Imbonati , Milano
Salva
Casa.it
1/14
  • Street View
  • Map