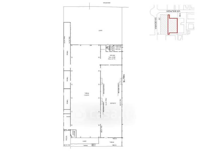
Capannone in vendita Via della Boaria 48, Faenza
Salva
Casa.it
1/17
  • Street View
  • Map