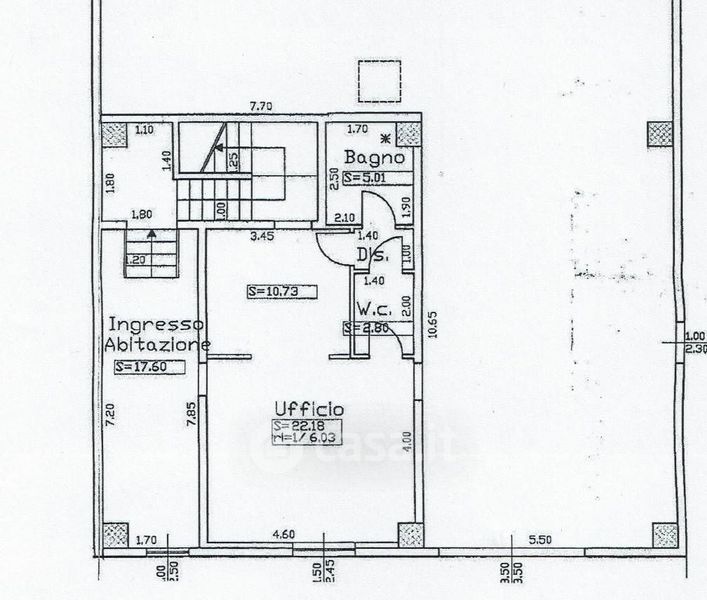
Capannone in vendita Piazza Aurelio Saffi 15, Forlì
Salva
Casa.it
1/18
  • Street View
  • Map