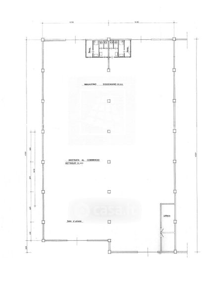
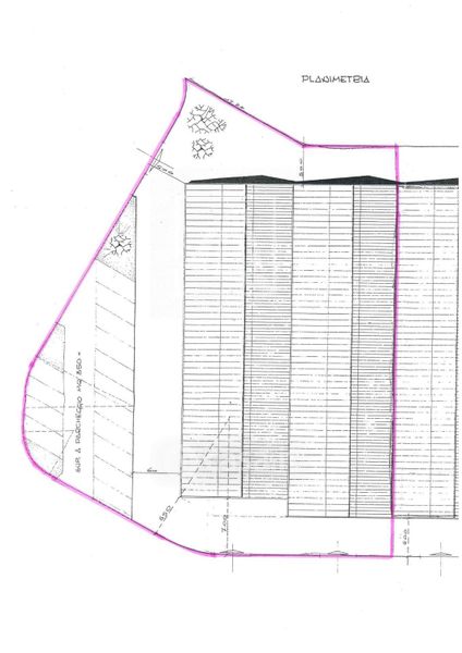
Capannone in affitto Via Pietro Colletta 6, Reggio Emilia
Salva
Casa.it
1/16
  • Street View
  • Map