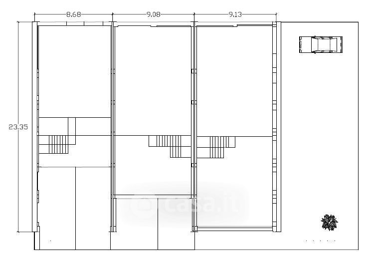
Capannone in vendita Via Curiel , Rottofreno
Salva
Casa.it
1/7
  • Street View
  • Map