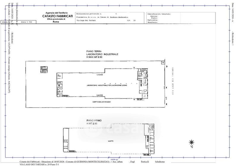
Capannone in vendita Via Lago Dei Tartari 20, Guidonia Montecelio
Salva
Casa.it
1/48
  • Street View
  • Map