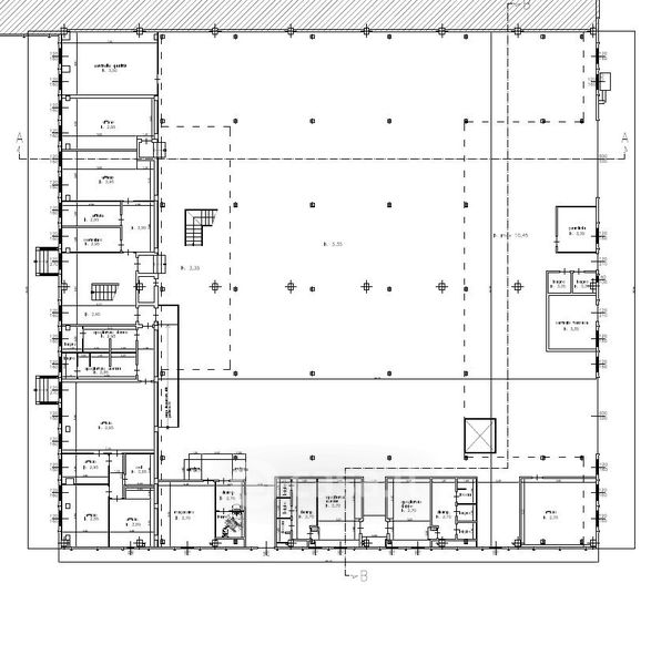
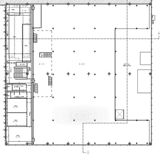
Capannone in vendita Via Zambeletti , Baranzate
Salva
Casa.it
1/24
  • Street View
  • Map