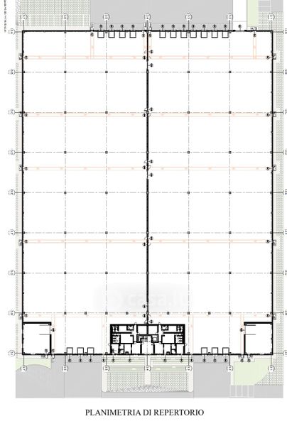
Capannone in affitto Via Giovanni Verga , Lainate
Salva
Casa.it
1/24
  • Street View
  • Map