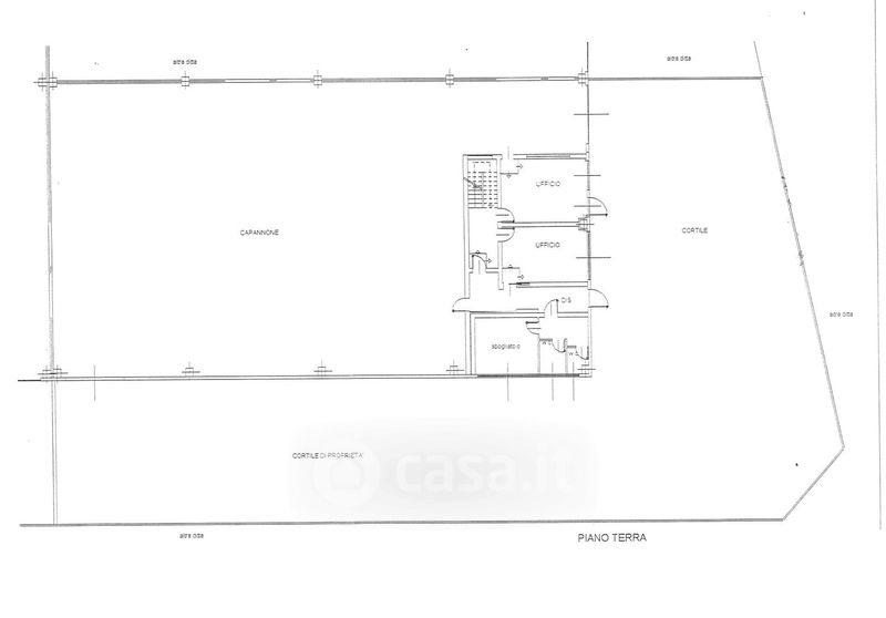
Capannone in vendita Via Romolo Murri 40, Magenta
Salva
Casa.it
1/14
  • Street View
  • Map