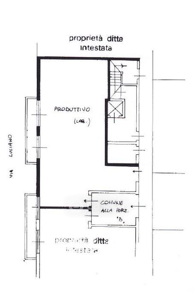
Capannone in vendita Via Barnaba Oriani 59, Milano
Salva
Casa.it
1/15
  • Street View
  • Map