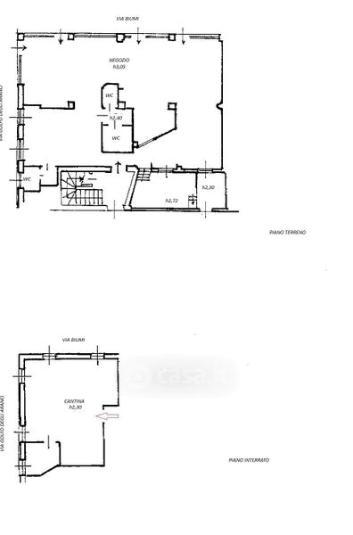
Capannone in vendita Via Privata Golfo degli Aranci 12, Milano
Salva
Casa.it
1/6
  • Street View
  • Map