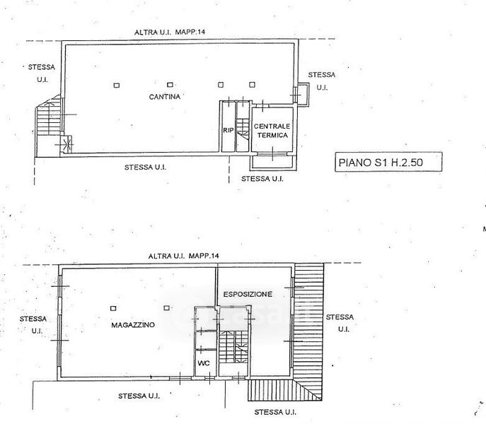
Capannone in vendita Via Marco Minghetti , Parabiago
Salva
Casa.it
1/43
  • Street View
  • Map