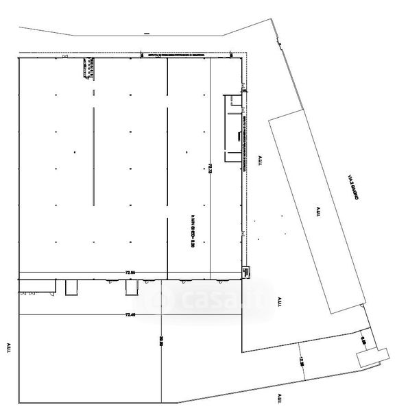
Capannone in affitto Via 2 Giugno 60, Peschiera Borromeo
Salva
Casa.it
1/10
  • Street View
  • Map