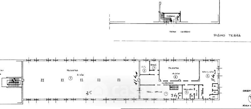
Capannone in vendita Via Arese 98, Rho
Salva
Casa.it
1/15
  • Street View
  • Map