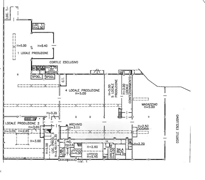
Capannone in affitto Via Enrico Fermi , Settimo Milanese
Salva
Casa.it
1/25
  • Street View
  • Map