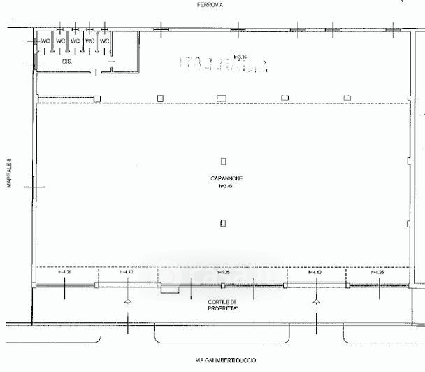
Capannone in vendita Via D. Galimberti 58, Trezzano sul Naviglio
Salva
Casa.it
1/22
  • Street View
  • Map