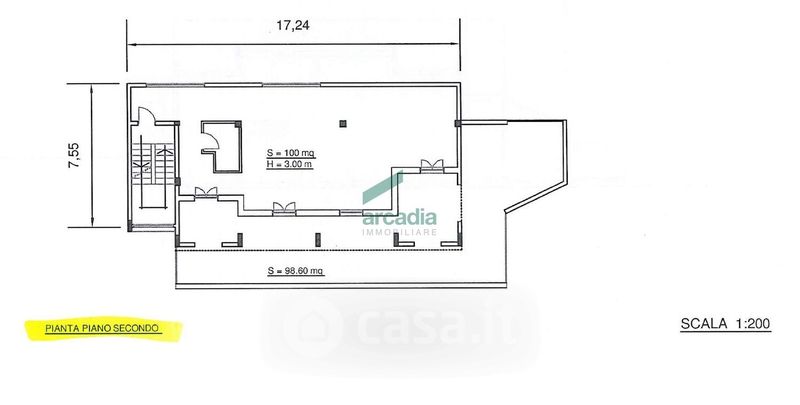
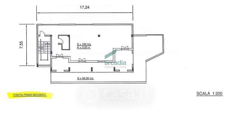
Capannone in vendita Viale Europa , Bari
Salva
Casa.it
1/26
  • Street View
  • Map