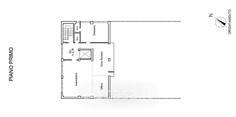
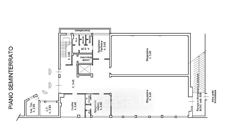
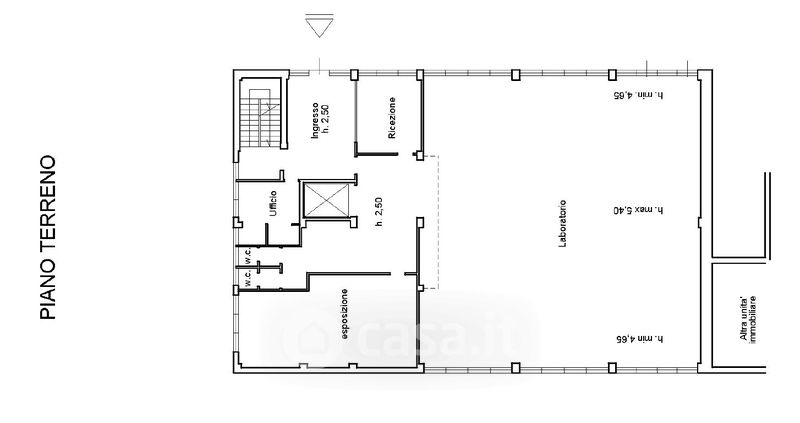
Capannone in vendita Via della Casella , Firenze
Salva
Casa.it
1/49
  • Street View
  • Map