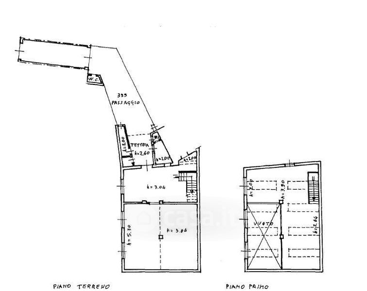
Capannone in vendita Piazza Pietro Leopoldo , Firenze
Salva
Casa.it
1/33
  • Street View
  • Map