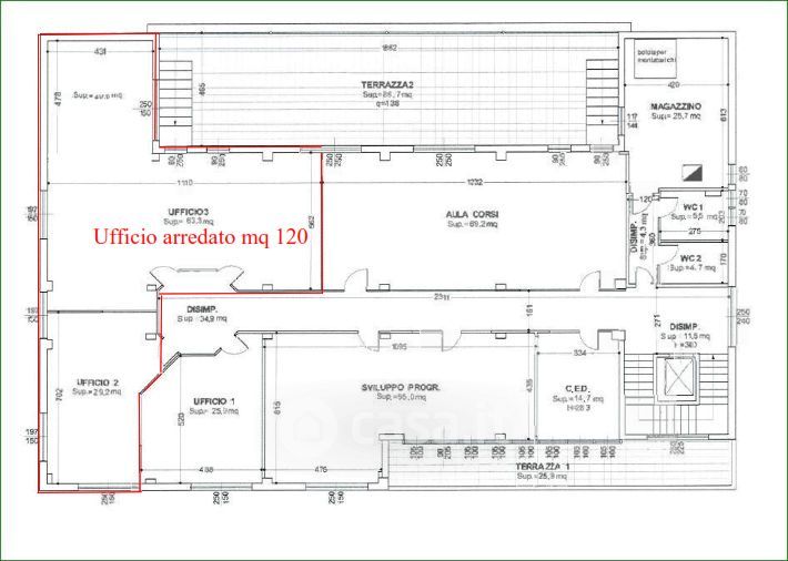
Capannone in affitto Via provinciale Lucchese , Sesto Fiorentino
Salva
Casa.it
1/13
  • Street View
  • Map