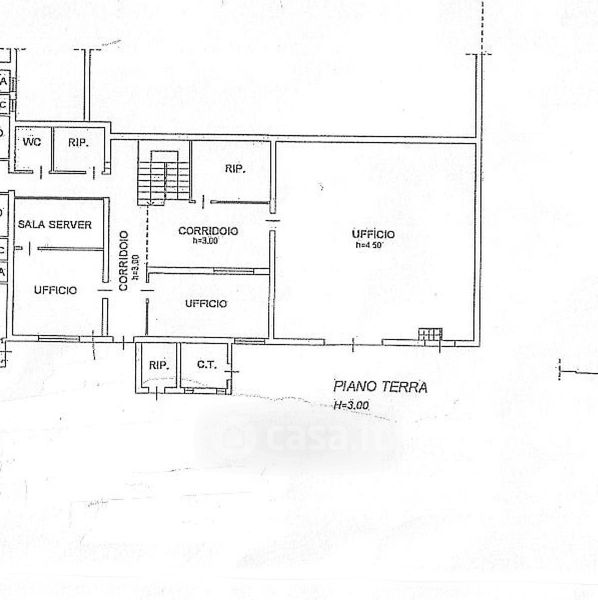
Capannone in affitto Via Lussemburgo , Padova
Salva
Casa.it
1/11
  • Street View
  • Map