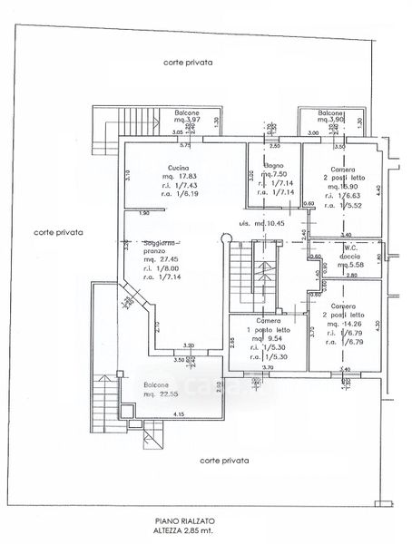
Casa Bi/Trifamiliare in vendita Via cappona rurale primo tratto , Savignano sul Rubicone
Salva
Casa.it
1/38
  • Street View
  • Map