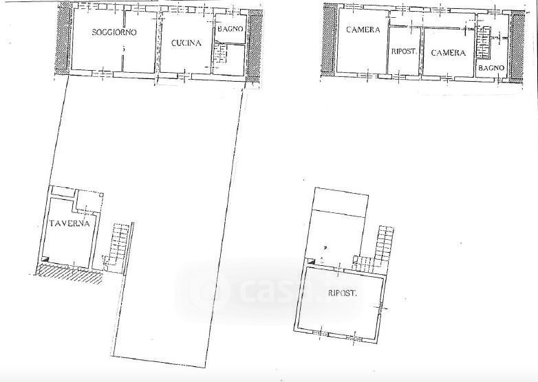
Casa Bi/Trifamiliare in vendita Via Pietro Leschiutta 11, Ronchis
Salva
Casa.it
1/15
  • Street View
  • Map