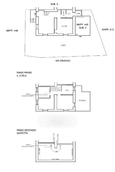
Casa Bi/Trifamiliare in vendita Via Antonio Gramsci 17, Riccò del Golfo di Spezia
Salva
Casa.it
1/26
  • Street View
  • Map