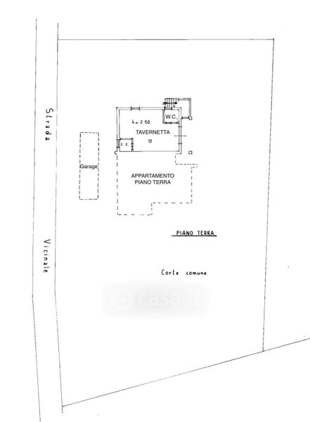
Casa Bi/Trifamiliare in vendita Via Pieve 1, Macerata Feltria
Salva
Casa.it
1/17
  • Street View
  • Map