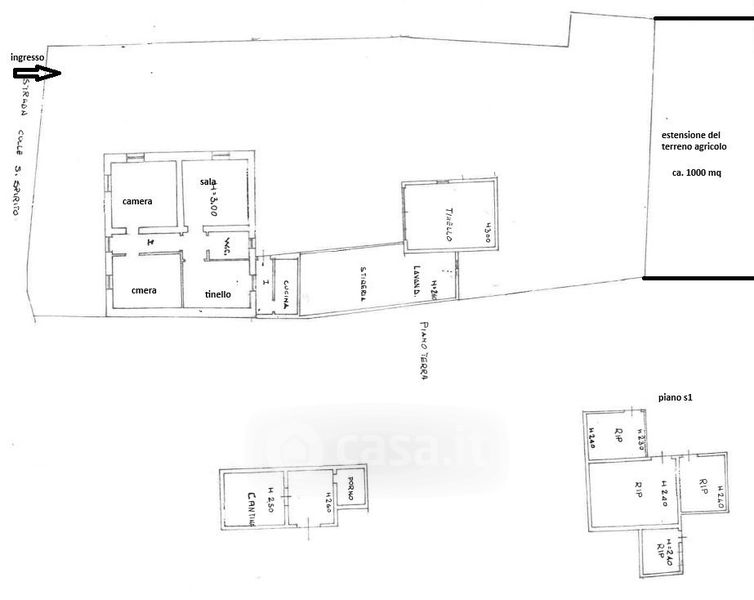
Casa indipendente in vendita Strada Colle Santo Spirito 7, Pescara
Salva
Casa.it
1/31
  • Street View
  • Map