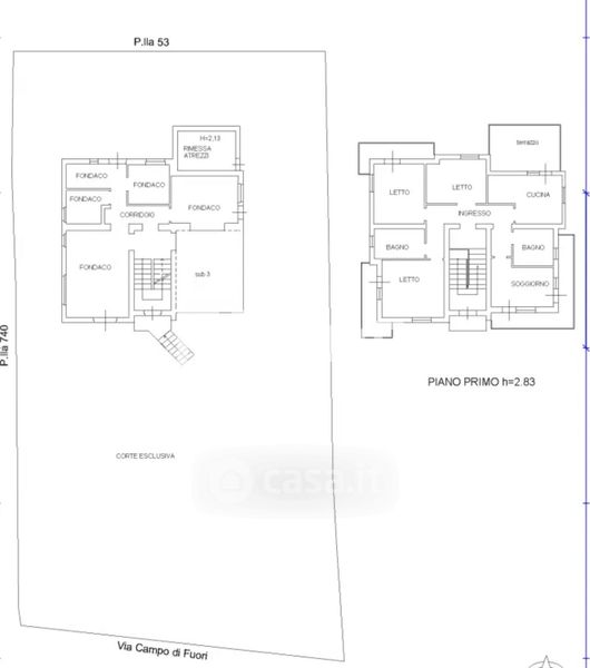
Casa indipendente in vendita Via Capo di Fuori , Sant'Omero
Salva
Casa.it
1/13
  • Street View
  • Map