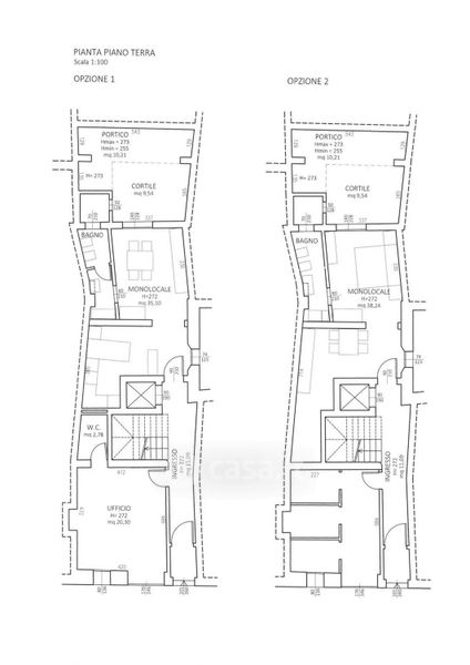
Casa indipendente in vendita Via Ugo Bassi , Castel San Pietro Terme
Salva
Casa.it
1/18
  • Street View
  • Map