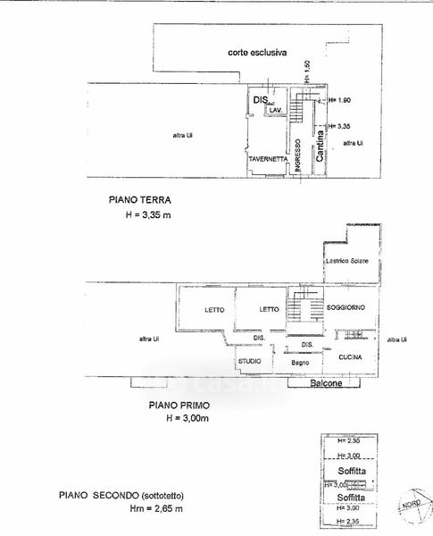
Casa indipendente in vendita Corso Martiri 391, Castelfranco Emilia
Salva
Casa.it
1/24
  • Street View
  • Map