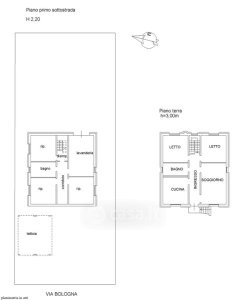
Casa indipendente in vendita Via Bologna , Ferrara
Salva
Casa.it
1/43
  • Street View
  • Map