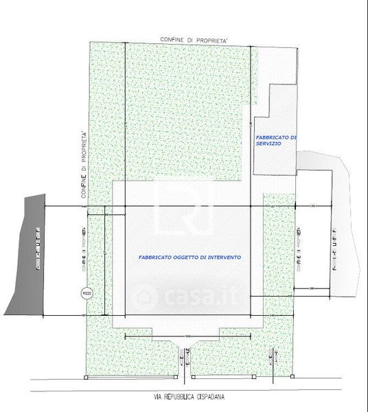
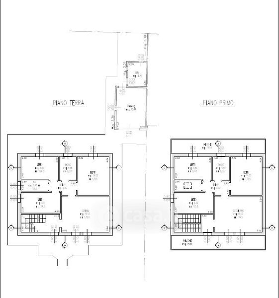
Casa indipendente in vendita Via Repubblica Cispadana , Forlì
Salva
Casa.it
1/21
  • Street View
  • Map