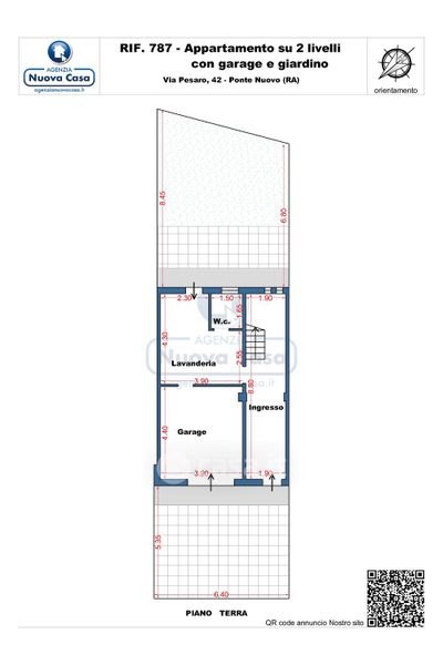
Casa indipendente in vendita Via Pesaro 42, Ravenna
Salva
Casa.it
1/25
  • Street View
  • Map