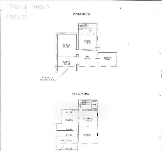
Casa indipendente in vendita Via Conca Nuova , San Giovanni in Marignano
Salva
Casa.it
1/18
  • Street View
  • Map