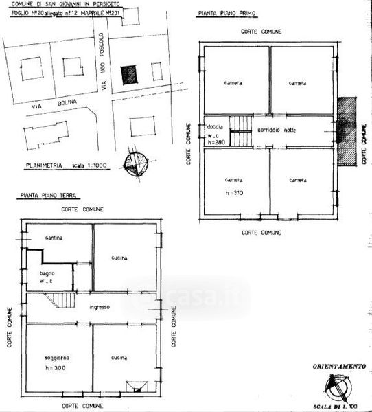
Casa indipendente in vendita Via U. Foscolo 38 -26, San Giovanni in Persiceto
Salva
Casa.it
1/70
  • Street View
  • Map