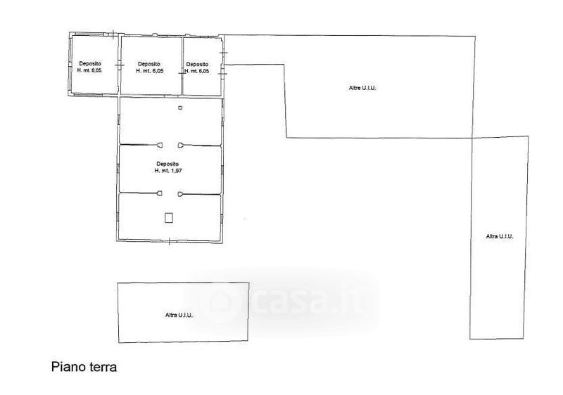
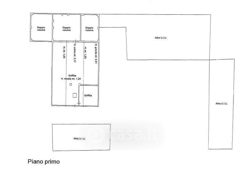
Casa indipendente in vendita Via Olmo , San Prospero
Salva
Casa.it
1/23
  • Street View
  • Map