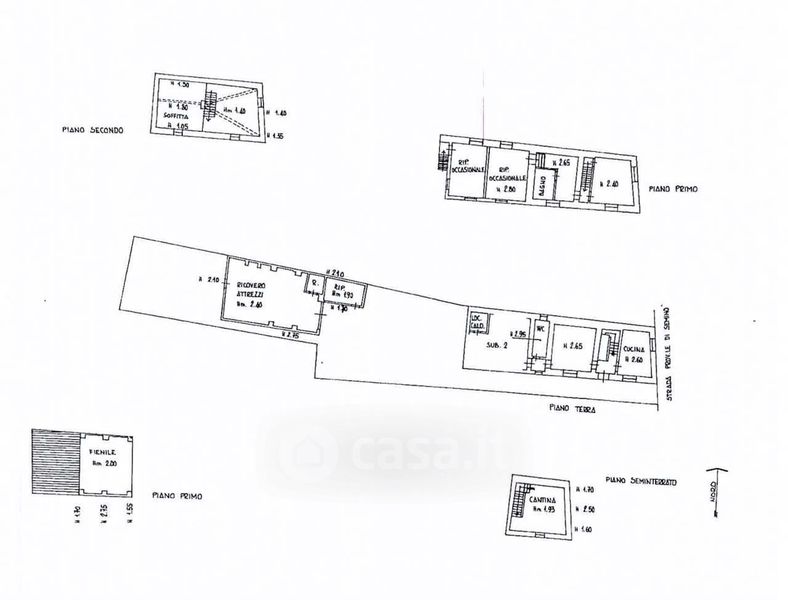
Casa indipendente in vendita Località Seminò , Ziano Piacentino
Salva
Casa.it
1/30
  • Street View
  • Map