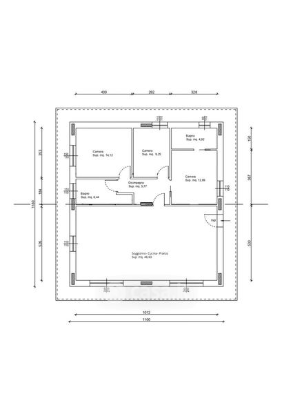
Casa indipendente in vendita Via Caterina Percoto , Pavia di Udine
Salva
Casa.it
1/9
  • Street View
  • Map