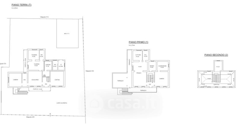
Casa indipendente in vendita Via Fornace , Pordenone
Salva
Casa.it
1/17
  • Street View
  • Map