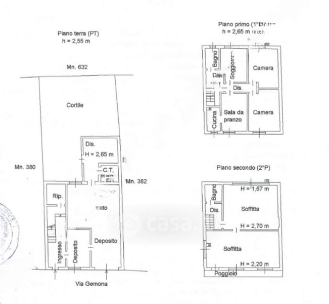
Casa indipendente in vendita Via Gemona 13, Tolmezzo
Salva
Casa.it
1/52
  • Street View
  • Map