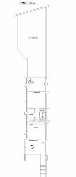
Casa indipendente in vendita Via Irlanda 43, Albano Laziale
Salva
Casa.it
1/66
  • Street View
  • Map