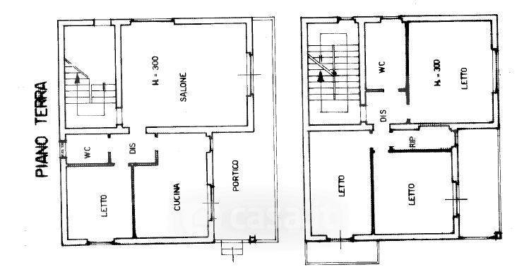
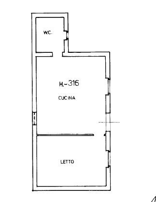
Casa indipendente in vendita Via della Croce Rossa 1, Anzio
Salva
Casa.it
1/50
  • Street View
  • Map