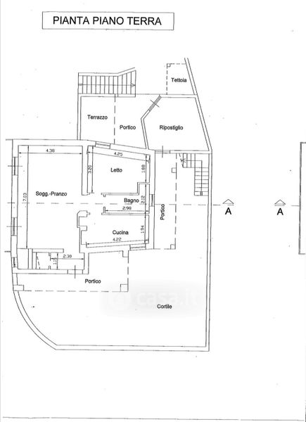
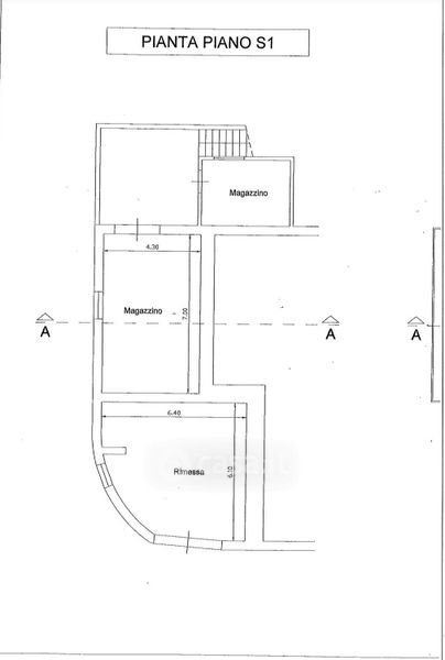
Casa indipendente in vendita Via Fontanasecca 17, Fabrica di Roma
Salva
Casa.it
1/31
  • Street View
  • Map