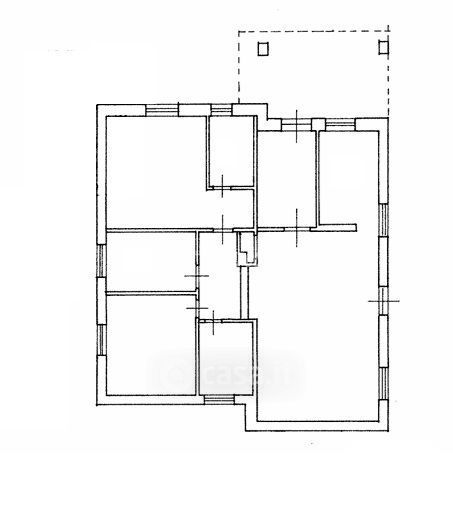
Casa indipendente in vendita Via Pedavena 87, Roma
Salva
Casa.it
1/30
  • Street View
  • Map