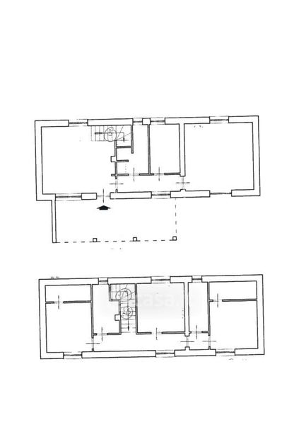
Casa indipendente in vendita Via Prenestina Nuova 12, San Cesareo
Salva
Casa.it
1/64
  • Street View
  • Map