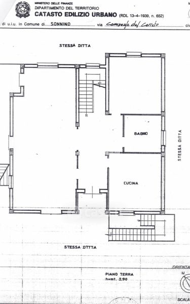
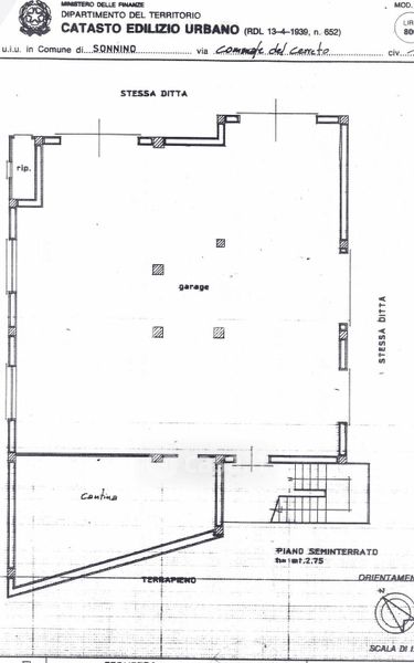
Casa indipendente in vendita Via Cerreto , Sonnino
Salva
Casa.it
1/13
  • Street View
  • Map