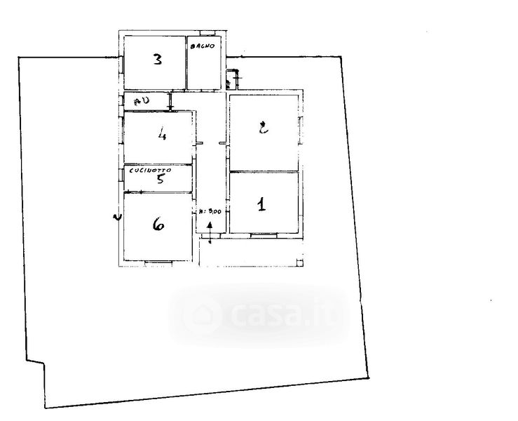
Casa indipendente in vendita Via Canale , Castelnuovo Magra
Salva
Casa.it
1/32
  • Street View
  • Map