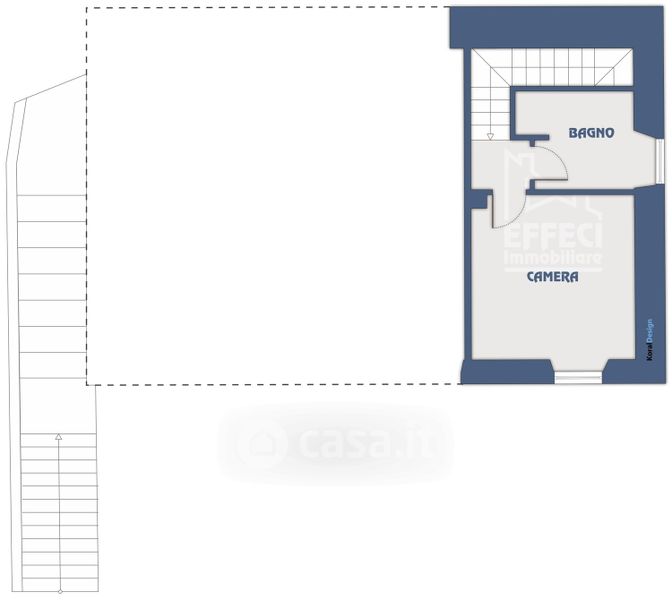
Casa indipendente in vendita Via Barassi 8, Lavagna
Salva
Casa.it
1/24
  • Street View
  • Map