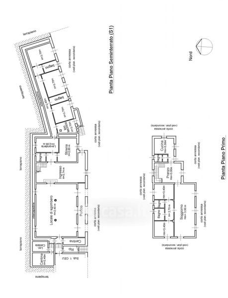
Casa indipendente in vendita Via dei Tessitori 1, Zoagli
Salva
Casa.it
1/70
  • Street View
  • Map